Home
Baupläne
Gewerbeflächen
Wohnungen
Kontakt
Impressum
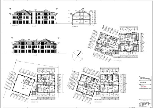
Baupläne Wohnungen
Bauzeichnung
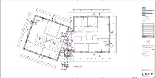
Gründung
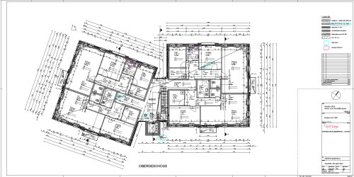
Obergeschoss
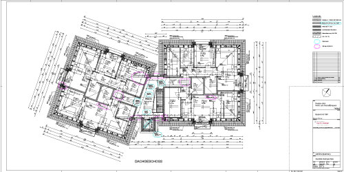
Dachgeschoss
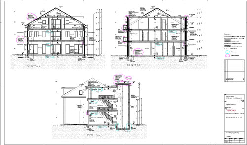
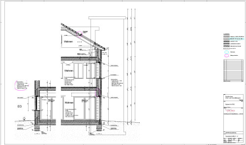
Ansichten
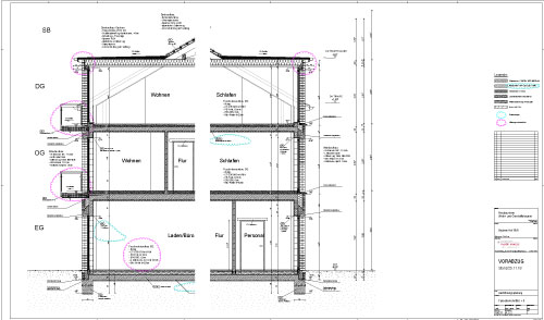
Schnitt I
Schnitt I-II
Schnitt III-V
powered by webEdition CMS